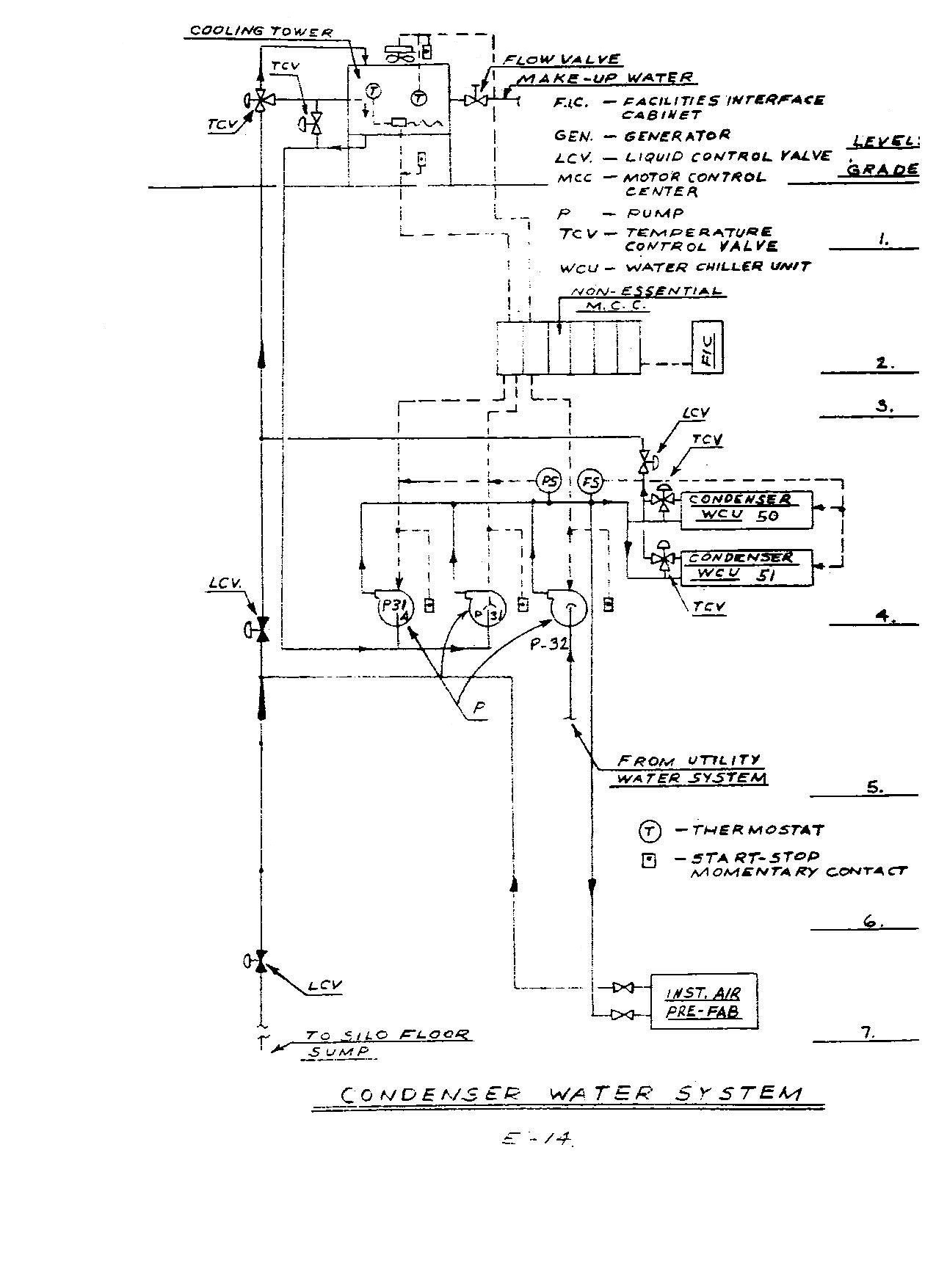
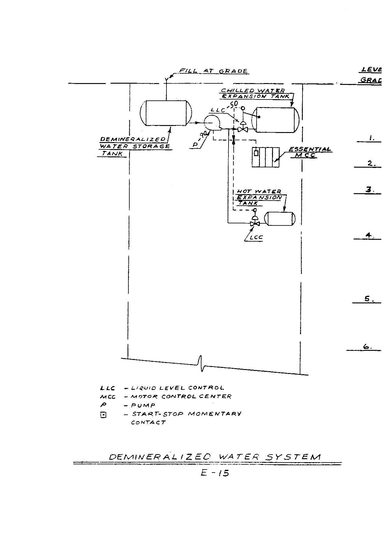
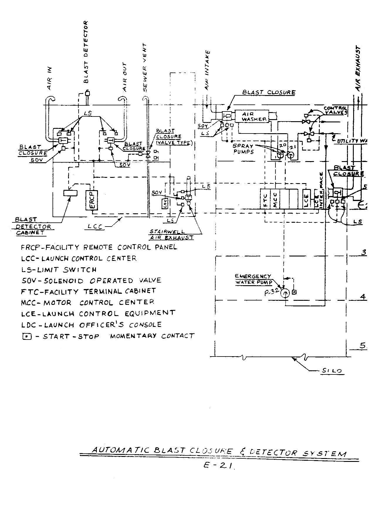
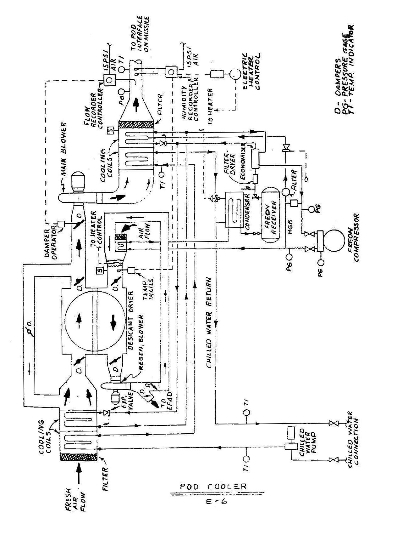
ATLAS F ELECTRICAL DIAGRAMS

 

 

HOME